ニュース/スタッフブログ

2025.10.09 

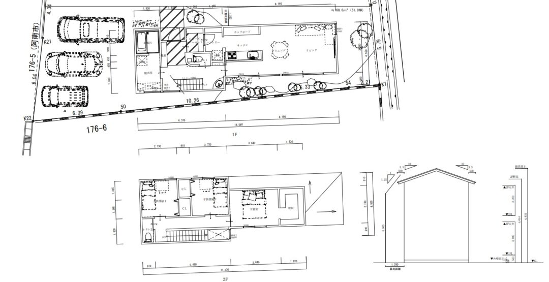
領家町火屋ヶ原分譲地

阿南市領家町火屋ヶ原に新規分譲地ができました!!

富岡小学校まで徒歩1分!!

建蔽率50% 容積率80%

1種低層住居専用地域

阿南市道 西接道6m

建築家が考える参考プラン↓↓↓

どちらの区画でもOKです。

他にもプラン例あります。

ぜひお問合せ下さい。

0120-07-8996 

お問い合わせ・ご相談はこちら